Comments on Individual Chapters, with Multimedia Links
(this page still under construction but I'll share as I go)
____________________________________________________
Table of Contents for this page (click on a word or phrase in the Table of Contents to jump directly to that part of the page):
- Links for individual chapters (those highlighted in blue have content):
- 1 NEW, 2 NEW, 3, 4, 5, 6, 7, 8, 9, 10, 11, 12, 13, 14, 15, 16, 17, 18, 19, 20, 21, 22, 23, 24, 25, 26, 27, 28, 29, 30, 31, 32, 33, 34, 35, 36, 37, 38, 39, 40, 41, 42, 43, 44, 45, 46, 47, 48, 49, 50, 51, 52, 53, 54
____________________________________________________
LINKS FOR INDIVIDUAL CHAPTERS
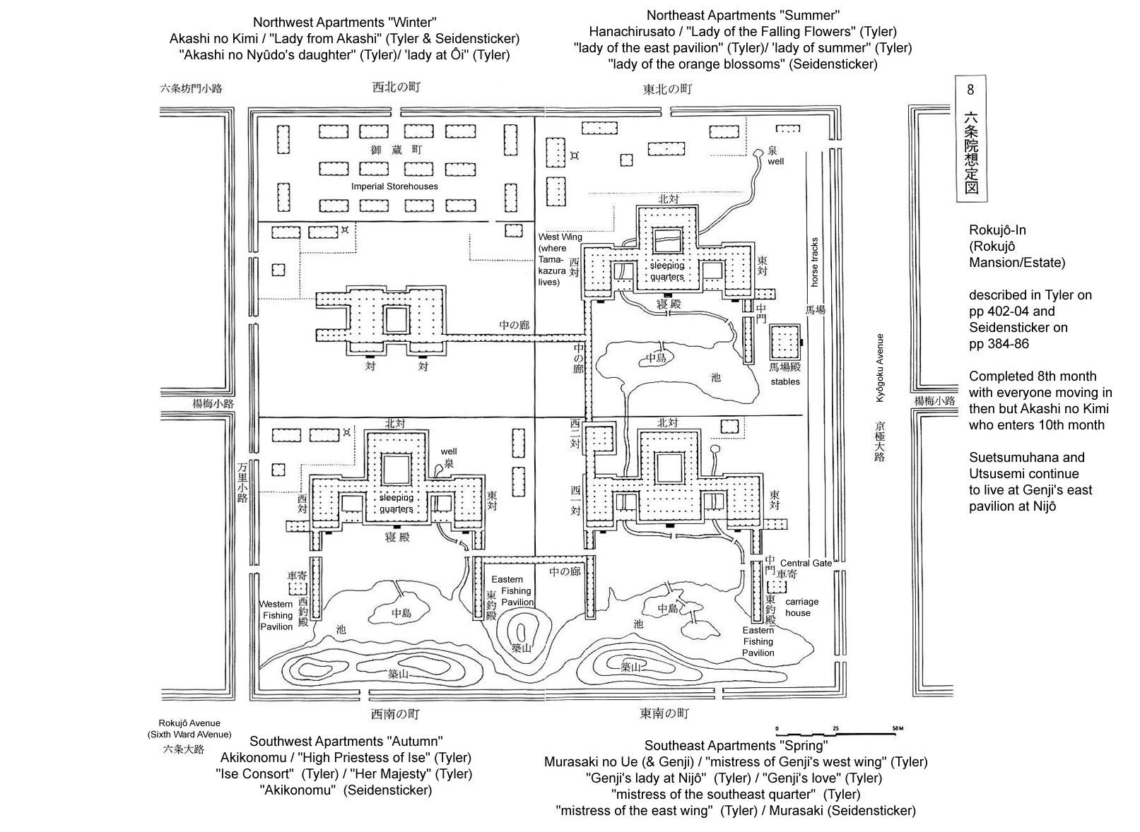
- Chapter 7 "Beneath the Autumn Leaves (Momoji no ga)"

Genji approaches the Dame of Staff (Gen no Naishi)
by singing "Eastern Cottage (Azumaya)
when he hears her playing the biwa beautifully.
(Link to original page)

small image (600 x 369 pixels, 43k)

large image (1200 x 738 pixels, 285k)
labled floorplan:

small image (807 x 589, 140k)

large image (1613 x 1178, 368k)

Fujibakama
- Chapter 31 "The Handsome Pillar (Makibashira)"
- Uemura Kanako's watercolor interpretations are here. The first scene is TYLER, PAGE 528 where Higekuro declares his continuing commitment to his deranged wife; the second is TYLER, PAGE 533 where Higekuro's wife has been commanded by her father to leave Higekuro and return to the family estate. She will take her daughter, Makibashira, with her. The daugther is distraught that she may never see her father again. "'You,' she told her daughter, 'must stay wth me whatever happens."
- "kerria rose, yamabuki" TYLER, PAGE 541
- Chapter 34 "Spring Shoots 1 (Wakana - jo)"
- Click here to go to a Japanese language website, a page with photos of full-sized Japanese dolls depicting the birth of the first born son to the Heir Apparent, by Akashi Himegimi/Nyôgô (called in this chapter Heir Apparent's Kiritsubo Consort, then Haven). TYLER, PAGE 609. The photos can each be enlarged by clicking on them. A short explanation in Japanese accompanies them and further links can be pursued--there are quite a number of photos. Everyone is dressed in white to purify the birth site. The man holding the baby is Genji. The "tiger's head" has been prepared, as has the royal sword, the first bath, sutra reading, the twanging of bows to dispells evil spirits, a scholar reading from the Chinese classics, etc.
- Chapter 38 "The Bell Cricket (Suzumushi)"
- Today's matsumushi (a type of cricket) was called suzumushi in the Heian period. It's call is quite lovely, a faint and clear sound--the type of elegant sound you can well imagine was attactive to Heian aristocrats. You can hear it here. (Song launches immediately, so take care if you are in a library ... but it isn't loud.)
- Tyler's "bell crickets" TYLER, PAGE 712 is matsumushi in the original. The Heian matsumushi is today's suzumushi. It's song is also delicate and attractive, and can be heard here.
- Chapter 40 "The Law (Minori)"
- In the last poem Genji's Murasaki (Murasaki no Ue) will compose (TYLER, PAGE 759), she gives the image of dew on a type of plant, called hagi (bush clover). There are at least three reasons for the selection of this plant, a favorite of poets since the Man'yoshu. First, it is associated with autumn, the season of the moment and one she wishes to emphasize because of its unsettling, chilling effect. (TYLER, PAGE 758). Second, it is associated with dew, often drawn upon in poetry to symbolize the briefness or life or the nearness of death. Third, its flower is, appropriately, murasaki (purple).
- Chapter 41 "The Seer (Maboroshi)"
- Masayuki Miyata interprets the moment when Genji, grieving the loss of Murasaki stands before a red plum tree at the wing of the Nijô Estate to which Murasaki had moved when she was ill and where she spent the final months of her life. "The little boy looked very carefully after the red plum that stood before the wing. ..." TYLER, PAGE 769. Genji, in mourning clothes and seemingly in his own world. The young boy (Kaoru)--supposedly Genji's son by the Third Princess but actually fathered by Kashiwagi--playfully reaches for the blossoms. They are in separate worlds.
- Chapter 43 "Red Plum Blossoms (Kôbai)"
- Comment on the general theme of this somewhat confusing to read chapter: Primarily it introduces more of the characteristics of Kaoru and especially Niou, though much of this is done in an understated way. Niou's increasing fascination with the adopted daughter of Kôbai, a very high-ranking woman (daughter of a prince, Emperor Kiritsubo's brother) called Her Highness (Miya no Okata) is part of that characterization of him. The chapter is built around the sensual categories of perfume and music.
- This chapter and the central figure of this chapter (the "Grand Counselor") are called Kôbai "Red Plum (blossoms)." The red plum was considered less elegant than the white plum, which poems of the Kokin Waka Shû (Anthology of Japanese Poems Old and New) honored so often. The red plum blossom's color is stronger and so is its fragrance. (Tyler's language is a little misleading on his page 800 where he says the red plum "lacks the scent of the white" -- in the Japanese it says "inferior to (otoreru)" and I think this is what he means, not that its smell is more faint.) It is nevertheless a gorgeous flower.
- TYLER, PAGE 797-798 discusses the stringed musical intrument called the biwa.
- Chapter 44 "Bamboo River (Takekawa)"
- I have been looking on the web for recordings of saibara music, a type of folk music. I haven't been successful except for this site advertizing an annual matsuri. The content changes regularly so there may or may not be something here. Go to: Nihon no kakuchi no Matsuri & Gyoji.
- Chapter 45 "The Maiden of the Bridge (Hashihime)"
- General comment: This is the first of the chapters (ten in all, and running to the final chapter of the book) that are called the "Uji chapters" (Uji-chô), a name drawn from the new primary setting of the tale, Uji. This set is probably the most famous series of chapters of the entire Genji.
- The "character guessing" (hen-tsugi) on TYLER, PAGE 830 (according to the editors of the SNKBT version 22:301) perhaps means guessing the remaining part of a Chinese character after one portion of it is shown. It does NOT mean guessing personality traits of people.
- The Eighth Prince ("His Highness") moves to Uji with his daughters after his residence burns down (TYLER, PAGE 832). Uji is a real place but in addition, the sound "uji" has a negative resonance with "ushi" (in classical orthography the two would be written exactly the same in hiragana), which means "sad, depressed." It was often used in poetry because of this word play. Uji is also separated from the center of the cultural world, the capital, and this adds to its sense of sad loneliness.
- It is helpful to try to keep distinct the two individuals called "His Highness" in this chapter, namely, the Eighth Prince and Niou. For example, on TYLER, PAGE 842 the "His Highness" of the chapter towards the top of the page, starting "What is the matter ..." refers to the Eighth Prince, father of the two daughters, which the "His Highness of the last paragraph on that page, starting with "His Highness came in the end ..." refers to Niou, who is developing, at Kaoru's encouragement, and interest in the two daughters living at Uji.
- TYLER, PAGE 846 "in letters like the tracks of some strange bird" (tsubutsubu to ayashiki tori no ato no yau ni) this is a fairly stock phrase to describe the failing handwriting of someone whose writing was once superb but is now, due to illness, faint, scattered, and disconnected (that is, the individual letters do not flow into one another but have breaks between them, since the writer is struggling with the process). "Strange" (ayashi) here, in my interpretation, means that the bird is not walking in a predictable line, but rather wanders (so the lines on the page are similar to that effect).
- Chapter 46 "Beneath the Oak (Shiigamoto)"
- TYLER, PAGE 851 Regarding the phrase "mountain cherry flowers" (yamazakura) in His Highness of War's (Niou's) poem: Generally speaking when the topic of cherry blossoms comes up in the Heian period it is the mountain cherry tree to which the speaker is refering. The cherry tree was native to Japan, the plum imported from the mainland. The cherry has a long history in the country, even by this time. (For example, there are references to the special beauty of the cherry in the Kojiki--compiled in 712; also, it was thought that the water from wells near the base of such trees had special medicinal power.) Cherry trees were planted in the capital, most magnificantly along the grand Suzaku Avenue that led up to the entrance to the Imperial Palace (where they were planted alternately with willow trees); nevertheless, the cherry retained it strong association with growing wild, in mountains themselves consider quasi-sacred. The Yoshino area is famous as a hilly-mountainous region with strong spiritual associations and the photo below is from that area. Uji is not this far into the countryside, but it was hilly and, at that time and in the psychology of the capital inhabitants "remote."
- TYLER, PAGE 857 Regarding the phrase "stag cries" (shika naku) in His Highness of War's (Niou's) poem that is part of the long letter he sends to the Uji sisters: the cry of the deer searching for its mate was a common image used in poetry of the time to express romantic and/or erotic urgency. It is a rather sharp and startling sound, one that happens even at night at times. To hear a sound similar to the one made by the deer of this area go here The deer of this area are the "Japanese deer" (Nihonjika, Cervus nippon) while the recording is of an "elk" or "red deer" (Cervus elaphus), a rather larger animal.
- TYLER, PAGE 861 To read about the cry of the "wild goose" (kari) and here it, jump to J130 Kokin, Spring Book One Reading Companion -- Comments and multimedia elsewhere on this site (part of the series of pages for my students at Cal) and scroll down to SPRING BOOK ONE, no. 31 "harugasumi ..." There the discussion is about springtime sightings of geese, but most of the information is relevant nevertheless.
- TYLER, PAGE 865 The "braken shoots" (warabi, Pteridium aquilinum) of the first poem on this page (composed by the elder sister/Ôigimi) are fronds from a fern-like plant that is edible (still eaten today in Japan) and has poetic associations with early spring.
- The "parsley" (seri, Oenanthe stolonifera) of the poem by the "younger sister" (Naka no Kimi) is one of the seven herbs of spring. For more on the seven herbs jump to J130 Kokin, Spring Book One Reading Companion -- Comments and multimedia elsewhere on this site (part of the series of pages for my students at Cal) and scroll down to SPRING BOOK ONE, no. 18 "kasugano no ..." and read about "young sprouts."
- Chapter 47 "Trefoil Knots (Agemaki)"
- Knots, are, in the classical sense, strongly related to the very positive and felicitous concept of binding (musubu), with binding related to becoming romantically attached or married.
- The agemaki is a type of knot used in gift-giving and ceremonial situations. (It is also a hair style.) It generally looks like the first knot below but appears in a number of contexts, such as helping to bind armor, as in the second picture.
- TYLER, PAGE 872 "he [Kaoru] gave up approaching her [the elder Princess, Ôigimi] directly and instead spoke earnestly of His Highness of War [Niou]." As Tyler will correctly note at the end of the paragraph, Kaoru is pressing Ôigimi to take seriously Niou's interest in the younger Princess (Naka no Kimi); in other words, it is NOT that he is recommending Niou as a romantic replacement for himself with regard to the elder Princess (Ôigimi).
- TYLER, PAGE 877 "'I have no idea how to do the gift knots,' she [the younger Princess, Naka no Kimi] insisted ..." ( ... There may be a second meaning here that indirectly suggests the trouble the elder Princess/Ôigimi and the younger Princess/Naka no Kimi have in managing to decide to marry.) Agemaki is the knot used to bind gifts. Here's how to tie it (good luck!):
- TYLER, PAGE 878 "as she [the elder Princess, Ôigimi] watched the women wash and comb her sister's [Naka no Kimi's] hair, ..." Hair was washed on predetermined days, in a repeating schedule that works out to about once a month. Once a month, that is, most of the time, the hair was washed with water that would darken it. ("Kôkyû josei no biyô," Kokubungaku 25:13 [Oct 1980], p 183.)
- TYLER, PAGE 885 "The twenty-eighth, the last day of the equinox, was a lucky one, ..." TYLER, PAGE 888 "His Highness [Niou] wanted his guide [Kaoru] with him that evening, too, ..." TYLER, PAGE 889 "'On the third night people have rice cakes, ...'" These are the three nights that indicate a wedding and they seem to be assumed as bound to happen, by the narrator or the characters she describes. That these must be three consecutive nights explains His Highness's (Niou's) frantic attitude when it seems he might not be able to get away that evening. It also explains why the first visit is timed to be "a lucky one".
- On several occasions in this chapter, Tyler has translated "the sound of water" (midzu no oto) when refering to the Uji River in hyperbolic language. (TYLER, PAGE 876 "noise of the brawling river", TYLER, PAGE 886 "the river roared ever louder", TYLER, PAGE 892 "river roaring by".) I'm not exactly sure what he has in mind, except that the dramatic moment for Ukifune (first foreshadowed on TYLER, PAGE 1032) will happen at this river and perhaps he is linking all references to the river's water to the forboding mood of that scene and the role the river plays in it. (All use the same simple phrase "river sound"--midzu no oto.) Uji River itself is noisy in the sense that it is quite broad and the cumulative effect of the water sounds are substantial. Some stretches of it are narrower than others and that would increase the water flow speed, of course. But we can imagine the sisters to be living at a wider part of the river (since there is a "full view of the ancient [...should probably be "aging" here] Uji Bridge" from their estate and that bridge was at least 160 yards long according to Tyler). Thus, it seems that the river rarely would be as dynamic as depicted in Tyler's choice of words (not Murasaki's) for the season doesn't warrant it either, but may well get this sense on a second reading of the tale, once one has encountered its more unfortunate role. Here's a photo of a narrower stretch in autumn that gives some idea of its flow and also the hilliness that the tale refers to:
- Chapter 48 "Bracken Shoots (Sawarabi)"
- "Bracken shoots" (warabi) are discussed here. This chapter's title is actually Sa-warabi, where the "sa" means "early."
- TYLER, PAGE 917 "they [the young Princess/Naka no Kimi and His Highness/Niou] had combined their little half verses ..." This is the practice of linked-verse (renga) in its early stages. In the twelfth century linked-verse poems will go beyond the predetermined length of the 31-syllable waka and will have elaborated for itself extensive rules of composition. In the Muromachi period renga will become the preeminent poetic form and will lead also to the advent of the haiku.
- TYLER, PAGE 921 "The red plum in the garden ..." For comments on the "red plum" (kôbai) see Chapter 43.
- TYLER, PAGE 925 "The idea of letting the Counselor [Kaoru] go to a complete outsider struck him [Yûgiri] ..." In this paragraph Yûgiri is angry that His Highness (Niou) has brought in the young Princess (Naka no Kimi) as so soon a time before Yûgiri's own Sixth Daughter (Roku no Kimi) came of age and became thus eligible to be given as a bride to Niou. Yûgiri considers the possibility of giving his daughter instead to Kaoru even though they both have Genji's blood. "Outsider" here means allowing Kaoru (over whom has has authority) to eventually marry someone from a family not connected to his (Yûgiri's) own.
- Chapter 49 "The Ivy (Yadorigi)"
- TYLER, PAGE 931 "They [His Majesty, Kinjô and the Minamoto Counselor, Karou] played [go], and His Majesty lost two out of three." The game of go was well established in Japan by the Heian period. (Even the Ten-Thousand Leaves [Man'yôshû], compiled in the mid-eighth century, lists at least two poems by a "Go Master" [go-shi]; see Book IX:1732 and 1733.) The game is mentioned in Sei Shônagon's Pillow Book (Makura no sôshi), Murasaki Shikibu's diary and in numerous places in Genji including the chapters "Utsusemi" (perhaps its most famous scene), "Takekawa," "Yodoriki" and "Tenarai." The game as it is played today takes a while to complete, say at minimum about an hour. It may be an overreach of interpretation, but I would suggest that we imagine such a liesurely pace between the Emperor and Kaoru.Go is not a fast-paced game.
- TYLER, PAGE 943 "He [His Excellency, Yûgiri, father of the Sixth Daughter who is being married to His Highness / Niou] wondered about the ceremony tonight, which he seemed to want to be as magnificent as possible, ...." Tyler's footnote states that this is the second night of the three nights Niou is to spend with the Sixth Daughter in the typical marriage pattern; however, by my count it is the third and so the one with the greatest need for elaborate ceremonies. (The second night is the one where the lady in the wing at Nijô, Naka no Kimi, so forlornly lays "sleepless through the night" -- see just above this passage on the same page.)
- TYLER, PAGE 955 "This summer ..." This is the first mention of Ukifune, who will be such an important figure in the story.
- Chapter 50 "The Eastern Cottage (Azumaya)"
- As Tyler says in his introductory note that explains the origin of the name of this chapter, "Azumaya" is also the title of a folk song (saibara). We encounter this song first in Chapter 7 "Beneath the Autumn Leaves (Momoji no ga)" where Genji approaches to older Dame of Staff (Gen no Naishi), singing it. Tyler's note 39 on page 147 gives the details, but essentially it describes a man seeking entrance into a woman's house on a rainy evening. See Chapter 7 for a contemporary illustration of Genji approaching Gen no Naishi.
- TYLER, PAGE 992 "Taira no Shigetsune ..." This is the Taira clan that will become the temporary victors in the Hei-ke (Taira vs. Minamoto) wars about which we will read in the fall. Genji was a Minamoto. The Taira clan was a clan of warriors and still looked down upon somewhat at this time.
- TYLER, PAGE 994 "Her Highness had her women bring out pictures and looked at them while Ukon read the words." First, "Her Highness" is Naka no Kimi. Second, this is an archetypical scene of how stories (tales, fiction) were shared among "readers," that is, someone read aloud while others listened, with, very often, picture books to add another level of interest in the story. "Picture scrolls" (e-maki) are for this purpose.
- TYLER, PAGE 997 "Eastern accents, ..." This is the same "east" of "eastern cottage" (azumaya) and helps set up the dour mood of this residence where Ukifune has been hidden.
- TYLER, PAGE 999 "Her Highness his wife ..." This is Kaoru's wife the Second Princess (Onna Ni Miya).
- TYLER, PAGE 1001 "Are the weeds so thick ..." "Weeds" here is a type of undergrowth called mugura. It appears also in a sad poem sent to Yûgiri by the Haven (Ochiba no Miya) in Chapter 37 "The Flute (Yokobue)". (See TYLER, PAGE 701.) Its form is not the point, rather that the garden is neglected. However a picture of it is here if you are interested, as part of a medium sized webpage called "Plants in Genji Monogatari" (with some English).
- TYLER, PAGE 1001 "and then, somehow, in he [Kaoru] came [to where Ukifune is]." To me this is quite reminiscent of the scene where Genji "somehow" finds he way into the room where Akashi has locked herself to escape him. (See TYLER, PAGE 270.) The original Japanese does not use the same language but in both cases the narrator inserts herself, with a claim that she cannot understand the full details of the situation.
- TYLER, PAGE 1004 "His Late Highness ..." is the Eighth Prince, Ukifune's (and the First Princess, Ôigimi's) father with whom Kaoru was close.
- Chapter 51 "A Drifting Boat (Ukifune)"
- Regarding "Ukifune," the name of the chapter and the main character by which it takes its name:
Uki-fune literally means "floating (as in adrift) - boat" The verb uku means to float on the surface of the water unanchored, unpredictably, uncertainly. Thus uki (until the Edo period when the arts became closely tied to life in the pleasure quarters) means "of uncertain fate" but can suggest "lacking morals". Ukare-me were "women of no fixed abode," that is, traveling entertainers or "women who got around." Many of the women who served at court were thought of in this light even if it was not really accurate. Izumi Shikibu is called ukareme by Fujiwara Michinaga. He called Murasaki Shikibu, by the way, a "playgirl" or "girl about town" (sukimono).
The most frequently occurring conjugated form of the verb uku is uki which is homonyphic with an adjective uki (ushi in its dictionary form) that means "to be sad." There is no real etymological connection but this coincidence of sound was exploited constantly in the poetry. Further that adjective ushi, when written in Heian period hiragana (onna-te, "woman's hand"), looks exactly like the place name Uji. (The ji sound is a transformation of the shi sound and not recorded anywhere on paper.) Also, the adject ushi has direct etymological associations with another verb, umu that means "to become tired, discouraged and ready to give up."
Thus the Uji chapters of the Tale of Genji weave through the name and sound of the central character Ukifune the distant and rather depressing story setting of Uji, the notion of unsettledness if not wantonness in the word uki, supported with recurring images of bridges, boats (the famous wild few days spent afloat with Niou) and rivers (in which she will float way), and the overall negative sound of the word with its associations of depression and malaise.
- TYLER, PAGE 1011 "The delightful hare mallet ..." A charm (o-mamori) given in the Heian period on the first hare day of the first month to dispell evil spirits. (I would suggest that Ukifune is using this occasion as an opportunity to write Kaoru rather than waiting for him to write her, since a seasonal gift was sometimes opportune timeing for the woman as an excuse for contacting the man she waits to hear from.) Five colors of string are used. The line drawing in the book is fine, but here is a color picture.
- TYLER, PAGE 1025 In the below illustration of the trip Niou and Ukifune take to the Isle of Orange Trees, the artist places the moon of the twentieth day [the fifteenth day is the full moon] upon the water's surface for the text says "the surface of the water, too, was cloudless (midzu no omote mo kumorinaki ni)," a phrase usually used to describe the sky. The angle of the moon, by the way, is a correct mirror image of an empirical moon for this day.

Niou with Ukifune. By Sata Yoshirô
- TYLER, PAGE 1025-26 "Island of Orange Trees" The "orange tree" (tachibana) was admired by the Heian aristocracy for its fragrance and was associated with memories of such emotional importance that they do not fade, perhaps because its leaves stay a rich green throughout the year or perhaps simply because the Collection of Poems Old and New (Kokin wakashû, ca. 905; Book III, Summer, no. 139) had established this as poetic convention (The poem is also in The Tales of Ise [Ise monogatari, 10th c.], Episode 60.) The orange blossom, especially its fragrance, makes frequent appearances in Genji at moments when a lover is recollected. It also estsablishes the important first scenes of Izumi Shikibu nikki (Lady Izumi's Story, ca. 1007), too. The fragrance is quite strong.
- TYLER, PAGE 1027 "Jijû gave up the rude apron ..." This piece of clothing (shipira) is a short, informal train (mo) that was worn by lower-ranking women attendants not, of course, an apron for cooking.

A shipira (Tyler's "apron")
(from Akiyama Ken, ed. Genji monogatari zuten. Shôgakukan, 1997)
- TYLER, PAGE 1029 "a messenger arrived with a letter from him" in other words, Kaoru.
- TYLER, PAGE 1029 "It [Kaoru's letter] was straight-folded letter, ..." and "His Highness's [letter], very long and knotted very tight, ..." The two forms of folding a letter indicate the different personalities of Kaoru and Niou. Kaoru's letter is a folded in the long style called tate-fumi, as in the diagram below, left. Such a folding method, with its white outer wrapping, was used on formal occasions. Ukifune's letter that contained the "hare mallet" (TYLER, PAGE 1011) was similarly folded. The letter from Niou, on the other hand, is folded in the style of a personal--in Genji that means romantic--letter. In the below center picture a woman holds such a letter. This tying of a letter in a knot is described with the verb musubu, also used to describe two people bound by initimacy or marriage. Knotting a letter "tightly" has positive associations of strong commitment. Chapter 47 "Trefoil Knots (Agemaki)" thoroughly explores the theme of knots .
On the left, a formal, straight-folded letter (tate-fumi) showing its front (right-hand side of picture) and back (left-hand side of picture); in the center, a woman opens a private, knotted letter (musubi-fumi); on the right, another diagram showing a knotted letter.
(The left and center diagrams are from Akiyama Ken, ed., Genji monogatari zuten, Shôgakukan, 1997; the right diagram is from William J. Puette, Guide to The Tale of Genji, Charles E. Tuttle Co., 1983.)
- TYLER, PAGE 1031 "The sun set, and a bright moon rose." and TYLER, PAGE 1031-32 "She remembered the moon that had hung in the sky that dawn [when Niou visited her] ..." As with the different ways the letters are folded, these moons are meant to contrast Kaoru and Niou. The moon that can be seen at dawn (ariake no sora, ariake no tsuki) is a waning moon after the full moon. It sets late, providing light by which a lover can return after a tryst. Since this return trip is full of emotion of the night that has just passed, it is deeply associated with romantic thoughts. Kaoru's visit, by contrast happens on the tenth day of the month. The waxing moon five days ahead of the full moon has exactly the inverted shape of that of the twentieth, which occurs five days after the full moon, and there is nothing particularly romantic about it. Since is sets well before dawn, it is not very useful for a lover. By the way, Tyler's "a bright moon rose" is not exactly accurate, for the tenth day moon rises at about 2PM. The Japanese reads kurete tsuki ito akashi meaning literarlly "It grew dark and the moon was very bright." One shouldn't imagine a dramatic, or romantic, moonrise.
- TYLER, PAGE 1033 "A letter came that day from his lordship: ..." namely, Kaoru.
- TYLER, PAGE 1034 "'Keep your eye on that man ...'" That is, wait for the reply letter [from Ukifune] and follow the messenger to see where he takes it. He suspects it will go to Tokihata, in the employe of Niou, but, even more damningly, it goes directly to Niou (via his clerk). These details are spelled out on TYLER, PAGE 1035.
- TYLER, PAGE 1042 "Though in black despair ..." Ukifune's poem plays on the sound of her name and the flow of river water: nagekiwabi mi woba sutsu tomo nakikage ni uki na nagasamu koto wo koso omohe. Tyler's "abhorrent name" is "sad/floating name" (uki-na), and his "will mark me" is "will no doubt flow [through the ages]" (nagasamu).
- TYLER, PAGE 1042 "If I left no trace ..." Again, Ukifune's poem plays on the sound of her name: Tyler's "world" is more literarly "sad/floating world" (uki-yo).
- Chapter 52 "The Mayfly (Kagerô)"
- On the word kagerô: as used here it does mean the briefly lived insect by that name. But it also means the illusory presence of something that glitters intermittently to the point that (subjectively) one cannot be sure whether it exists or not. (Ono Susumu, ed. Kogo jiten, rev. ed., Iwanami shoten, 1990.) This is a very appropriate description of Ukifune towards the end of her story.
- TYLER, PAGE 1054 "a cuckoo called twice ..." This is the "lesser cuckoo" also called "Oriental cuckoo" (hototogisu). There is a picture of it on the Kokin Companion page of this website, here. As noted there, the hototogisu is associated in some myths and stories, and poems, as a messenger for lonely souls in the world of the dead. For several examples of its call, go here. (***By the way, this is a nice site for listening to Japanese bird songs, and it is in English. Main page 'Bird Songs in Japan' is here.)The hototogisu sometimes suddenly sings in the dead of night, and sounds a little mysterious when it does.Perhaps this is why it was thought to communicate with the world of the dead. The fifth month, especially the first day of that month (just ahead of mid-summer as conceived in the poetics of the time, mid-June by the solar calendar), the hototogisu, and the tachibana form a poetic set. The hototogisu dwelled in valleys and then came into the urban area of the Capital in the fifth month to sing its lovesongs. Thus the singing hototogisu is seen as a bird that publicly sings after a period of hidden (in the valley) song, that is, secret love is now openly declared. The tachibana blooms around this time and so, like the "Japanese bush warbler" (uguisu) and the plum blossom (ume), these form a pair. Watching for the hototogisu on the first day of the fifth month was a seasonal activity for the aristocracy.